Ihr bundesweites Partnernetzwerk für ganzheitliche Immobilienprojekte
Digitales Aufmaß & Flächenermittlung
Kostenloses Tool zur maßstabsgetreuen Planprüfung
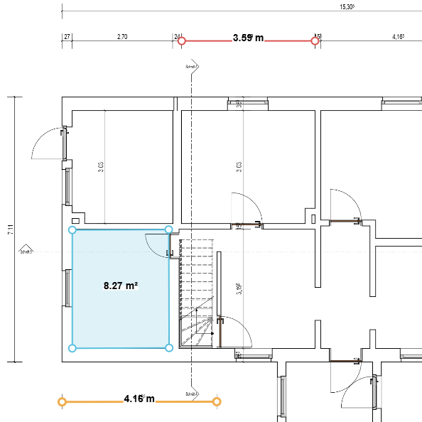
Mit unserem webbasierten Grundriss Mess-Tool können Sie unbemaßte Grundrisse, Bauzeichnungen oder Liegenschaftspläne schnell und unkompliziert digital nachmessen. Egal ob Sie eine einzelne Wandlänge überprüfen oder die Quadratmeterzahl eines Raumes ermitteln müssen – dieses Tool macht es möglich, ohne teure CAD-Software installieren zu müssen.
Funktionsweise: In 3 Schritten zum Ergebnis
Das Tool arbeitet direkt in Ihrem Browser (Desktop, Tablet oder Smartphone) und ist intuitiv bedienbar:
1. Plan hochladen:
Laden Sie Ihren Grundriss einfach als Bilddatei (JPG, PNG) oder PDF hoch. Bei mehrseitigen PDFs können Sie die gewünschte Seite direkt auswählen.
2. Maßstab setzen (Kalibrierung):
Damit das Tool weiß, wie groß der Plan in der Realität ist, ziehen Sie eine Referenzlinie an einer bekannten Strecke (z.B. einer Maßkette oder einer Türbreite) und geben die reale Länge ein. Ab sofort rechnet das Tool pixelgenau für Sie um.
3. Messen & Dokumentieren:
Strecken: Messen Sie beliebige Distanzen, Wandlängen oder Abstände.
Flächen: Umfahren Sie einen Raum mit dem Polygon-Werkzeug, um sofort die Quadratmeterzahl zu erhalten.
Export: Speichern Sie Ihre Arbeit als professionelles PDF inkl. aller Maße, Datum und rechtssicherem Hinweis – ideal für Exposés oder Bauakten.
Ihre Vorteile auf einen Blick
Keine Installation: Starten Sie sofort im Browser. Es ist keine Software-Installation oder Registrierung notwendig.
Universell einsetzbar: Funktioniert mit Fotos von alten Bestandsplänen, Scans oder digitalen PDFs.
Mobile Touch-Optimierung: Nutzen Sie das Tool bequem auf dem Tablet oder Smartphone direkt auf der Baustelle oder bei der Besichtigung (mit Pinch-to-Zoom).
Professioneller PDF-Export: Generieren Sie per Klick ein Dokument mit Ihrem Aufmaß, das bereits unseren Firmenkopf und rechtliche Hinweise enthält.
Kostenloser Service: Ein Service von Property Value Partner zur Unterstützung Ihrer Immobilienprojekte.
Hinweis: Dieses Tool dient zur schnellen Orientierung und Überprüfung. Für ein verwertbares Aufmaß kontaktieren Sie uns bitte für eine professionelle Vermessung.

Haben Sie Fragen zur Handhabung oder möchten Experten für Ihr Projekt beauftragen?
Tool veröffentlicht am
Tool zuletzt aktualisiert am
Kontaktieren Sie jetzt die Sachverständige und Autorin dieses Tools
Hinweis
Disclaimer zu den Tools
Unsere Tools und Rechner wurden nach bestem Wissen und Gewissen entwickelt. Dabei stützen wir uns auf sachverständige Quellen, die wir als zuverlässig und aktuell erachten. Bitte beachten Sie, dass diese Hilfsmittel lediglich der ersten Orientierung dienen und eine professionelle Beratung nicht ersetzen.
Sollten Sie Fehler entdecken oder über aktuellere Daten und zuverlässigere Quellen verfügen, freuen wir uns sehr über Ihre Rückmeldung. Nutzen Sie hierfür gerne den Kontakt-Button. Ihre Hinweise helfen uns, die Qualität unserer Angebote stetig zu verbessern und unseren Nutzern einen echten Mehrwert zu bieten.
Haben Sie Fragen zur Handhabung oder möchten Experten für Ihre Berechnungen beauftragen?
Immer auf dem Laufenden
Aktuelles zur Immobilienbranche
Wir liefern relevante Informationen rund um das Thema Immobilien und bieten spannende Einblicke in dem komplexen Immobilienmarkt.
Weitere Neuigkeiten und informative Artikel finden Sie im Blog.
11.12.2025
Mietspiegelrechner Hannover 2025 – Jetzt schon kalkulieren – Exklusiv bei uns
Dieser Rechner basiert auf den Daten der Beschlussdrucksache Nr. 2399/2025 zum qualifizierten Mietspiegel 2025 der Landeshauptstadt Hannover. Bitte beachten Sie: Bis zur offiziellen Inkraftsetzung durch den Rat der Stadt Hannover sind die Ergebnisse als vorläufige Orientierungshilfe zu betrachten. Rechtsverbindliche Auskünfte sind erst ab dem Tag des erfolgten Ratsbeschlusses möglich. Sobald der Mietspiegel 2025 amtlich veröffentlicht …
08.12.2025
Wohn- und Geschäftshaus mit Steigerungspotential!
Willkommen in Haste! Diese zum Kauf angebotene Immobilie, ursprünglich als Feuerwehrhaus erbaut, bietet Ihnen nicht nur eine interessante Geschichte, sondern auch vielfältige Nutzungsmöglichkeiten. Das Gebäude wurde im Jahr 1970 auf einem großzügigen Grundstück von 867 m² errichtet und erstreckt sich über mehrere Etagen, einschließlich Keller-, Erd-, Ober- und teilweise ausgebautem Dachgeschoss. Im Obergeschoss befinden sich …
05.12.2025
Barrierefreie Bürofläche im Erdgeschoss in verkehrsgünstiger Lage – Außenstellplatz inklusive
Zur Vermietung steht eine ca. 110 m² große, barrierefrei zugängliche Bürofläche im Erdgeschoss eines gepflegten Geschäftshauses. Die Räumlichkeiten bieten durch ihren flexiblen Schnitt eine ideale Grundlage für Kanzleien, Agenturen, Praxen oder Dienstleistungsunternehmen. Aufteilung und Ausstattung: Sie betreten das Gebäude durch einen repräsentativen Glaseingang und gelangen ebenerdig in die Büroeinheit. Dort empfängt Sie ein großzügiger Hauptraum, …
05.12.2025
Barrierefreie Gewerbeeinheit im Erdgeschoss
Zur Vermietung steht eine vielseitig nutzbare Gewerbeeinheit im Erdgeschoss eines Wohn- und Geschäftshauses mit einer vermietbaren Fläche von knapp 400 m², die sich über das Erdgeschoss und zugehörige Kellerräume erstreckt. Das Objekt eignet sich ideal als Büro, Praxis oder Verkaufsfläche und wird vor Übergabe vom Eigentümer frisch gestrichen. Eingangsbereich: Der repräsentative, geflieste Eingangsbereich kann durch …
05.12.2025
Gewerbefläche für Büro oder Einzelhandel in Wolfsburg-Rabenberg
Zur Vermietung steht eine helle und flexibel nutzbare Gewerbeeinheit im Erdgeschoss eines gepflegten Wohn- und Geschäftshauses in der Rabenbergstraße 32, 38444 Wolfsburg-Rabenberg. Die ca. 131 m² große Fläche besticht durch einen großzügigen, offenen Hauptraum. Eine breite, durchgehende Fensterfront sorgt für gute Lichtverhältnisse und bietet eine hohe Sichtbarkeit für Ihr Unternehmen. Der moderne Bodenbelag in Holzoptik …